
探险卡车车身
- 坚固耐用
- 保温
- 防水耐候
- 定制
您是否正在为您的探险卡车车身寻找特定的材料、设计或配置?特谱勒制造的探险卡车车身经久耐用、绝缘,旨在承受崎岖的地形和恶劣的天气条件。我们的车身箱可以满足您对每一个探险卡车的愿景,适用于世界上所有流行的卡车底盘。
探险卡车车身定制解决方案
我们提供 CKD(完全拆卸)、SKD(半拆卸)和 CBU(完全组装)形式的探险卡车车身。这些方法意味着买家可以购买用于制造房车车身的复合板和配件,或购买组装好的房车箱。至于入户门、窗户、天窗、储物舱口等箱体部件,用户可以选择从我们这里供应或在当地购买。(注意:我们不提供包装盒内的配置。
箱体夹芯板
探险卡车车身由高性能玻璃钢夹芯板制成。玻璃钢夹芯板复合技术为箱体提供了顶级的性能强度。这些面板的表面具有防水和抗紫外线功能,可适应各种极端天气条件。我们不同类型的箱体面板(XPS/PU保温泡沫)可以满足不同性能的箱体结构。


案例:7.7 英尺探险卡车车身
- 外部尺寸:2350 x 1596 x 1550mm。
- 内部尺寸:2250 x 1496 x 1450mm。
- 颜色:RAL9003。
- 总重量:208公斤。
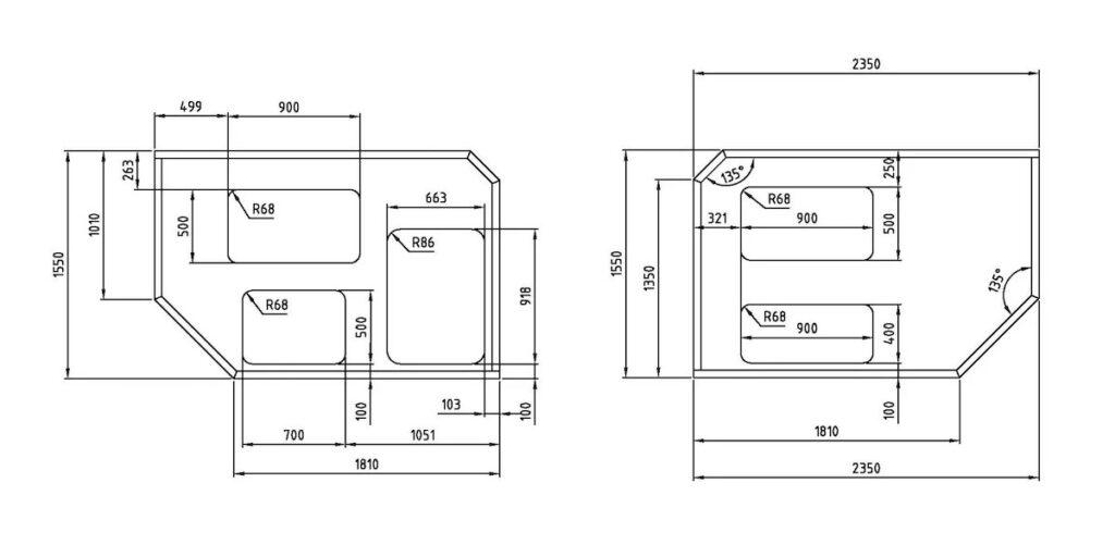
尺寸细节
| 箱板 | 结构 | 厚度 |
|---|---|---|
| 侧板 | FRP + XPS + FRP | 50.00mm |
| 前面板 | FRP + XPS + FRP | 50.00mm |
| 后面板 | FRP + XPS + FRP | 50.00mm |
| 屋顶板 | FRP + XPS + FRP | 50.00mm |
| 地板 | FRP + Plywood + XPS + FRP | 50.00mm |
| 后角板 | FRP + XPS + FRP | 50.00mm |
| 前角板 | FRP + XPS + FRP | 50.00mm |




车身设计


向我们提供您的探险卡车车身的材料、尺寸(长 x 宽 x 高和面板厚度)和数量或设计图,以获得专业的解决方案。